Polysan FORTIS boční stěna 900mm, čiré sklo FL3590
Kód: FL3590Súvisiaci tovar
Podrobný popis
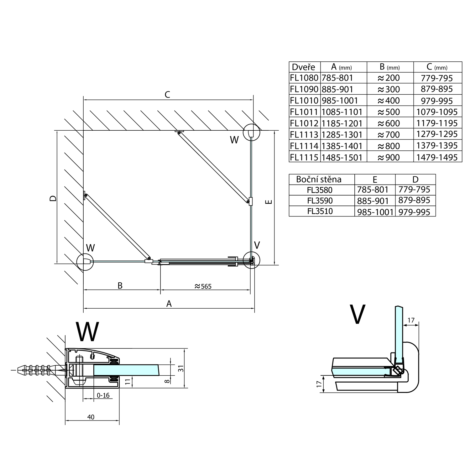
Technický nákres
Popis
Bezrámové pantové zástěny FORTIS v moderním hranatém designu. Minimalistické pochromované panty v nekompromisním hranatém designu, zevnitř zapuštěné pro snadné čištění a se zvedací funkcí pro pohodlné otevírání. Bezpečnostní čiré sklo v tloušťce 8 mm je ošetřené povrchovou úpravou ANTIDROP pro snadné čištění. Výška 2000 mm. Hranaté pochromované madlo ve stejném minimalistickém designu jako panty.
Praktickým doplňkem je možnost nalepení madla na ručník přímo na skleněnou plochu nebo použití závěsných poliček (madla na ručník ani poličky nejsou součástí zástěn). Ke sprchovým zástěnám doporučujeme vaničky z litého mramoru nebo odtokové kanálky.
K čištění skel doporučujeme ASC čistící a ochranný prostředek, 94000.
Celková charakteristika sprchových zástěn série FORTIS:
- Dveře se zdvihovým mechanismem pantu
- Hranaté pochromované panty jsou zevnitř zapuštěné
- Hranaté minimalistické madlo
- ANTIDROP ochrana skel proti usazování vodního kamene a pro snadnou údržbu
- Rohová vzpěra pro vyšší stabilitu je součástí balení, délka vzpěry se liší podle šířky skla
- Snadná montáž pomocí nastavitelného stěnového profilu 0-16 mm
- Hliníková prahová lišta
- Extra čiré magnetické těsnění
- Instalace na vaničku nebo na podlahu
- Splňuje normu EN 14448
![]() |
![]() |
![]() |
![]() |
| Pochromované madlo | Mosazné pochromované panty se zvedací funkcí... | ... z vnitřní strany zapuštěné do skla | Stabilitu zástěn zajišťuje rohová vzpěra |
Dokumenty - Údržba
Dodatočné parametre
| Kategória: | Sprchové kouty |
|---|---|
| Záruka: | 24 měsíců |
| Hmotnosť: | 39 kg |
| EAN: | 8590913863349 |
| Barva profilu: | Chrom - Leštěný hliník |
| Tvar: | Pevná stěna ke sprchovým dveřím |
| Počet balení: | 1 |
| Série: | FORTIS |
| Šířka: | 900 |
| Tloušťka skla: | 8 |
| Výška: | 2000 |
| Balení: | 1 |
| EAN: | 8590913863349 |
| Hmotnost: | 39.0000 |
| Taric: | 70200080 |
| Typ výplně: | ČIRÉ sklo |
| Úprava skla: | Antidrop |
| Záruka: | 2 roky |
| Značka: | POLYSAN |
Buďte prvý, kto napíše príspevok k tejto položke.
.png)



