Polysan FLEXIA vanička z litého mramoru s možností úpravy rozměru, 90x80cm 72927
Kód: 72927Súvisiaci tovar
Podrobný popis
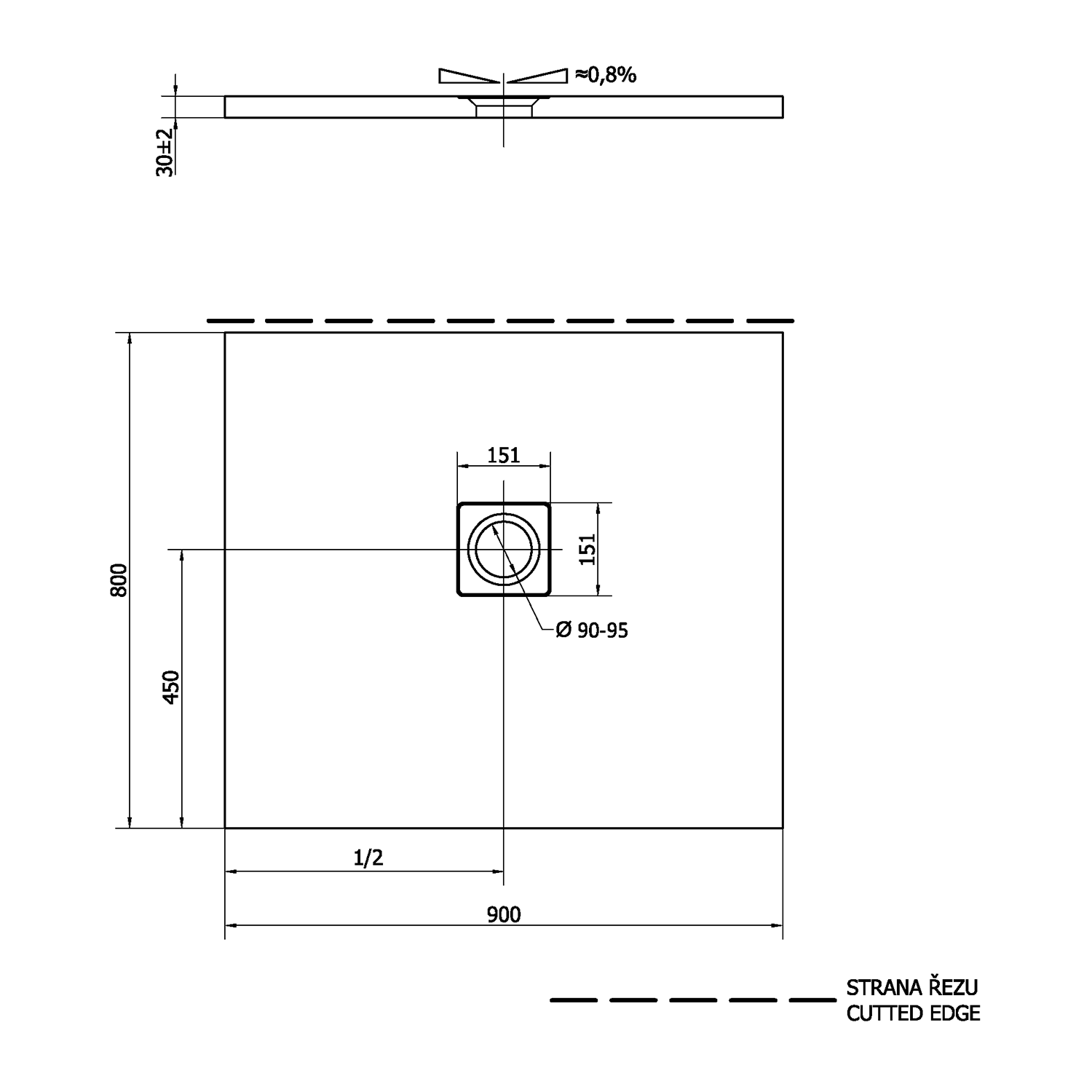
Technický nákres
Popis
Tento rozměr má jednu ze stran řezanou, a tak není pohledová. Viz schéma, kde je tato strana označena.
Možnost úpravy rozměrů vaničky svépomocí dle přiloženého návodu. Úpravou rozměrů vaničky je zachována standardní záruka na výrobek.
Vanička z litého mramoru FLEXIA je pravým řešením zejména při výměně vany za sprchový kout. Elegantní design vaničky, ke které je na výběr sifon s krytkou ve třech barevných provedeních, dodá vašemu sprchovému koutu nezaměnitelný a originální vzhled.
- Konstrukce podlahy - vaničky umožňuje její instalaci i do zcela netypických prostor jako jsou kouty s výřezy, popř. do koutů nepravidelného tvaru (vaničky s úkosem)
- Sprchovou podlahu je možné řezem upravit na požadovaný rozměr. Řez podlahou FLEXIA musí být rovný (krácení, úkosy, výřezy), nelze řezat do rádiusu (oblouky). Požadavek na úpravu rozměru uvádějte zároveň s objednávkou vaničky.
- Příplatek za úpravu rozměru dle platného ceníku
- Čtvercové a obdélníkové vaničky nabízíme v šířce od 80 do 180 cm a v délce od 70 do 100 cm
- Čtvrtkruhové vaničky nabízíme v rozměrech 80x80 až 120x90 cm
- Vaničky lze instalovat s nožičkami; vhodný typ nožiček je uveden u každé vaničky.
- Standardní provedení v bílé barvě, možno objednat i barevné provedení dle vzorníku RAL za příplatek 30 % k základní ceně
Při zadávání rozměrů je důležité počítat s tolerancí na přesnost řezu. Sprchové podlahy FLEXIA jsou řezány na požadovaný rozměr na strojní formátovací pile s tolerancí ± 2 mm na metr řezu. Následný řez není pohledový.
Umístění otvoru na sifon je pevně daný a nelze ho změnit. Okolo sifonu je, vzhledem k pevnosti podlahy, doporučeno případný řez vést minimálně 15 cm od středu sifonu.
Z důvodu dilatace nedoporučujeme montáž vaniček pod obklad.
- Nutno objednat samostatně speciální sifon s krytkou. Na výběr je sifon s krytkou v nerezu, bílé, černé nebo zlaté matné barvě.
Na sprchové vaničky POLYSAN vyrobené z litého mramoru poskytujeme záruku 2 roky. Podmínkou záruky je správné usazení podle návodu.
Příklady atypického řezu:


Dodatočné parametre
| Kategória: | Vany a vaničky |
|---|---|
| Záruka: | 24 měsíců |
| Hmotnosť: | 38 kg |
| EAN: | 8590729080800 |
| Barva: | Bílá |
| Materiál: | Litý mramor |
| Délka: | 900 |
| Tvar: | Obdélníkové |
| Počet balení: | 1 |
| Průměr odpadu: | 90 |
| Série: | FLEXIA |
| Šířka: | 800 |
| Výška: | 30 |
| Balení: | 1 |
| EAN: | 8590729080800 |
| Hmotnost: | 38.0000 |
| Rozměr: | 90x80x3 cm |
| Taric: | 39221000 |
| Záruka: | 2 roky |
| Značka: | POLYSAN |
Buďte prvý, kto napíše príspevok k tejto položke.
.png)